Wakerley















Our client along with his family love the warm Queensland weather and, when they purchased a block of land in Wakerley, they came to us for their air conditioning solution.
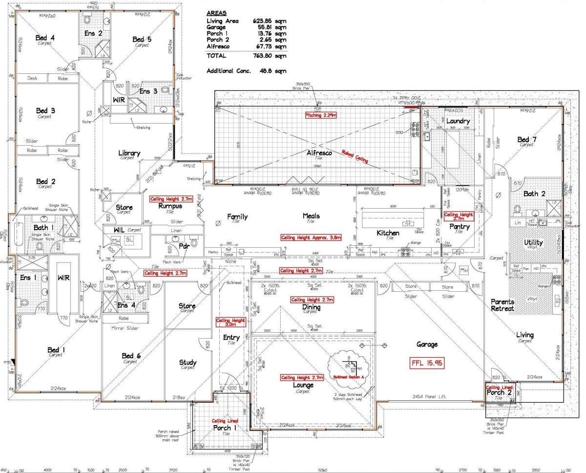
The client came to us wanting to create his dream home with a residential whole-house solution in ducted air conditioning. He wanted us to create luxury and sophistication that would add to the ambiance of his 7 bedroom, 6 bathroom home. The first stage of design was to acquire floor plans of the house. From there a customised proposal was drafted with a total of 3 ducted air conditioning units over a 763 sqm block with 27 vents. Catering to the clients’s needs we needed to create an energy efficient home by making the best decisions possible for his homes layout. Once that was set, styling was chosen including vent options and fresh air features, making the client’s home come to life.
Frequently asked questions
Not sure what to expect? These common questions might help.















